Moradia para Restaurar T3

Lisboa, Alenquer

Moradia para Restaurar T3
Enviar imóvel a amigo
Saber mais »
captcha
Campos obrigatórios *
Seguir imóvel Receba um alerta quando existir uma Baixa de Preço
Nome
Insira o código da imagem
captcha
Código
Moradia para Restaurar T3, Lisboa, Alenquer 129 000 € Ref: MAX-212-24
3
3
119 m²
119 m²
399 m²
Adega / Armazém com projecto de arquitetura aprovado para conversão em moradia T3, com terreno em Ventosa, Alenquer

Situado em pequena povoação junto à Ventosa, a 1 minuto da EN 115, encontramos este imóvel de grande potencial para conversão em habitação.

O imóvel encontra-se descrito como adega e armazém dividido da seguinte forma:
 
- Casa de rés-do-chão amplo para adega; com superfície coberta de 64m2;
- Barracão destinado a armazém e quintal, com área total de 335m2, superfíce coberta de 55m2 e superfíce descoberta de 280m2

Áreas:
Total: 399m2
Coberta: 119m2
Descoberta: 280m2

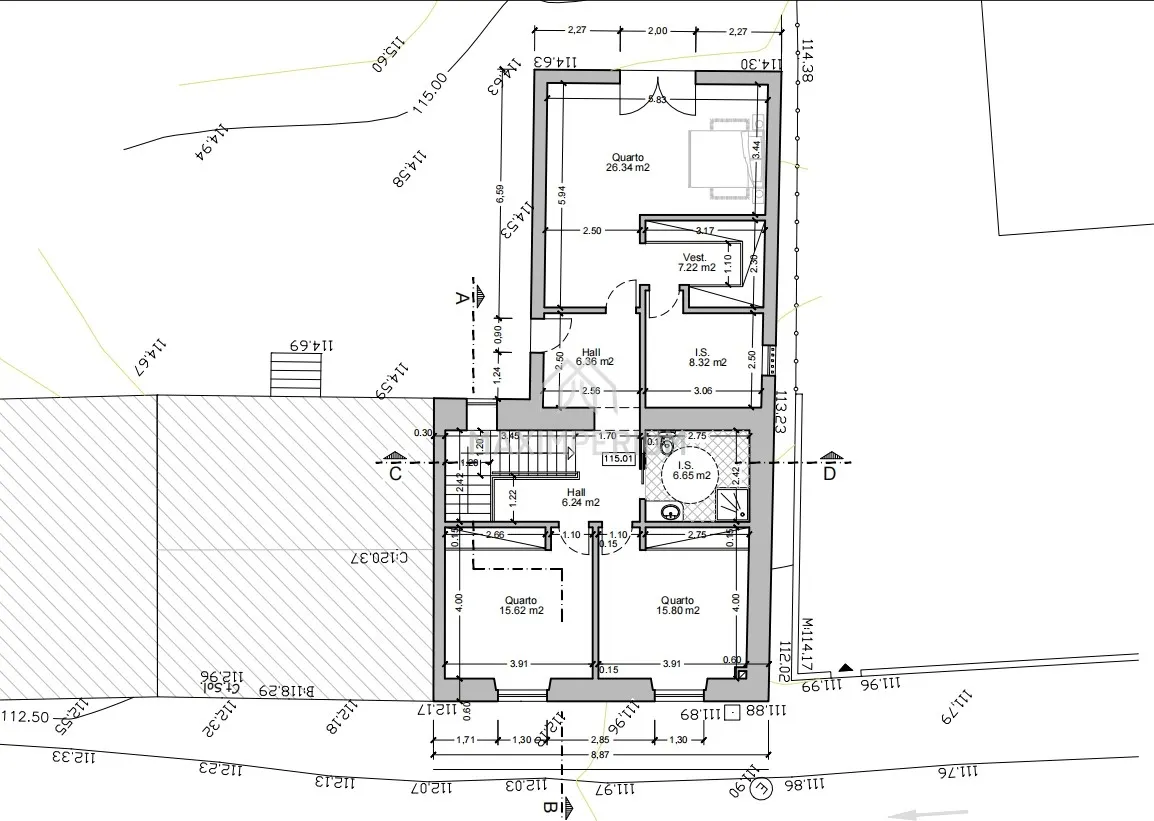
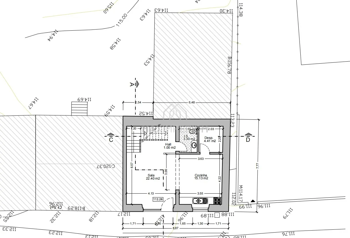
Tem projecto de arquitetura aprovado para uma moradia de 2 pisos T3 que se distribuirá da seguinte forma:

RC - Área Social - área útil de 46.24m2

Sala - 22.4 m2
Cozinha - 15.13 m2
Despensa - 4.41 m2
Casa-de-banho social (serviço) - 3.30 m2
Hall de acesso ao 1-º piso - 1 m2

1.º piso - Área privativa - área útil de 92.55 m2

Quarto 1 - 15.62 m2
Quarto 2 - 15.8 m2
Casa-de-banho privativo de serventia aos dois quartos - 6.65 m2
Hall de acesso aos quartos - 6.24 m2
Hall de entrada a partir do logradouro - 6.36 m2
Quarto 3 (Suite) - 26.34 m2
Casa-de-banho privativa da suite - 8.32 m2
Closet da Suite - 7.22 m2

O imóvel dispõe ainda de um terreno virado a poente sul onde poderá criar zonas de lazer.

Direções:

- Alenquer a 14 km (20 minutos)
- Torres Vedras a 20 km (28 minutos)
- Lisboa a 50 km (50 minutos)

Excelente oportunidade para dar forma à casa dos seus sonhos a cerca de 50 minutos de distância de Lisboa.
Interessado no Imóvel?
Data
Hora
Nome
Contacto
Mensagem
captcha
Código
Tipo de imóvel Moradia para Restaurar
Tipologia 3 Quartos
Objetivo Venda
Estado Em projeto
Preço 129 000 €
Ano Construção N/D
País Portugal
Distrito Lisboa
Concelho Alenquer
Freguesia Ventosa
Zona N/D
Características Gerais
Gerais
  •  
Divisões
Divisões Área Pavimento Paredes Tectos Observações
 
Meio Envolvente
  •  
Facilidades
  •  
Domótica
  •  
Energias Renováveis
  •  
Veja também
  • Moradia T1
  • Moradia T1
  • Moradia T1
  • Moradia T1
  • Moradia T1
Moradia T1
Lisboa, Alenquer
209 000 €
Moradia T1
209 000 €
Moradia T1 Lisboa, Alenquer
1
53 m² A. Bruta
53 m² A. Bruta Privada
50 m² A. Útil
125 m² A. Terreno
Contactar
  • Moradia para Restaurar T2
  • Moradia para Restaurar T2
  • Moradia para Restaurar T2
  • Moradia para Restaurar T2
  • Moradia para Restaurar T2
Moradia para Restaurar T2
Moradia para Restaurar T2
Lisboa, Alenquer
65 000 €
Moradia para Restaurar T2
65 000 €
Moradia para Restaurar T2 Lisboa, Alenquer
85 m² A. Bruta
85 m² A. Bruta Privada
85 m² A. Útil
85 m² A. Terreno
Contactar
Estamos disponíveis para o ajudar Pretendo ser contactado
Data
Hora
Nome
Contacto
Mensagem
captcha
Código
O que é a pesquisa responsável
Esta pesquisa permite obter resultados mais ajustados à sua disponibilidade financeira.